652 m2

Descripción

Ground in Puig Rom

Land with unbeatable views of Roses, Costa Brava.
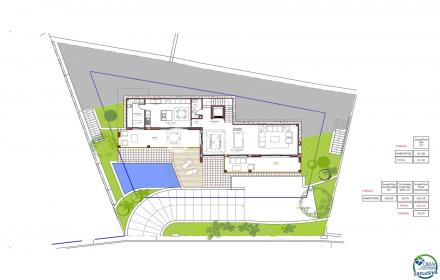
There is an approved preliminary project for a 1 and 2-story house based on the surface chart.
The constructed area of the plot in Roses is 115 m2 of housing, 18.50 m2 of porch and 42 m2 of garage, with a total constructed area of 175.50 M2.
The details of the structure, type of slab, envelope system and interior walls, façade, interior walls, type of roof, coatings, façade finish, interior finishes, type of plaster, exterior flooring will be able to have quality memory information. printed reinforced concrete in road traffic areas, interior flooring, with porcelain stoneware, interior carpentry details, exterior carpentry. The detail of a very spacious kitchen with custom furniture, installations, bathrooms, electrical installation, air conditioning installation, ACS solar installation, ventilation installation, TV installation, and intercom installation. 7x3 pool, with a good perimeter crown with natural stone and the fencing of the plot in Roses.
Have a plot in Roses, with a great attractive price-quality ratio.


Detalles

  • Tipo de Inmueble Terrenos
  • Distancia del mar 1000 m.
  • Vistas Mar

Distribución

  • Sup. Inmueble 652

Certificado energético


Calcula tu hipoteca

Precio del inmueble 300.000
Ahorro aportado 60.00020%
Plazo 30 Años
Impuestos y gastos:
Total hipoteca:
Tipo de interés: 4,0 %
Tu cuota mensual*: €/mes

Este es un cálculo orientativo no vinculante. Es necesario remitir la información detallada al banco para calcular la cantidad exacta.


Ubicación

Calle Pujada al Puig Rom, Roses


Galería de fotos

9e6941b22f5a9d49d42978ab5ebe5ea1.png 8839b213ed8f0e0760c08716a4dfd169.png 1d26743d12a4df413a91c664cdd9ce43.png e4ba6694d8729a1e9df3a6b090c15ac8_1600x1024.jpg 32058060cdd30fb50cfc04fd2d53adb4_1600x1024.jpg ee5e87ffd9bad9f0b0fe3334ec536035_1600x1024.jpg 4c29a18cb3e63c3f44ebca4a4a15b89f_1600x1024.jpg d234c34bf1ea32617f318abcfd7dc6d7_1600x1024.jpg 921d746b40b130a699e23014471d444e_1600x1024.jpg f3dac6ae1c3912433aa4856c062aabb0_1600x1024.jpg bbec0ed1b9f543f73344e11317f61a9e_1600x1024.jpg f6b5ad7a89e9ba65c09d23c08bcbd5ce_1600x1024.jpg
Precio de venta: 300.000 €
Referencia: 60
Contactar

Solicitar más información

Por favor rellena el formulario y nos pondremos en contacto con la mayor brevedad posible, gracias.

Nuestros agentes

Contacte ahora con uno de nuestros agentes.

grego.png
Gregori Barneda Sales - API nº 648
lola.png
Lola Gullung Manager & Rentals